DYHZQ電液動回轉器(轉角器)
【特 點】 :
1、實現機、電、液、儀一體化,可遠距離控制、中央調度室監控和微機控制。
2、電動執行機構(電動頭)由蝸桿傳動、彈簧力矩控制、機械磨損大、力矩經常失靈,不易調整,過載燒電機,操作不方便,而回轉液壓傳動,過載溢流保護、無級調整、運行平穩、力矩較大、任意鎖定,配置不同的儀器,儀表可實現管道內衡流控制。
3、采用全封閉結構,不漏油、不吸塵、不吸水、內部不銹蝕,使用壽命長,適應各種非高溫(120℃以下)的惡劣環境使用。
4、特別是風門選用DYHQ-C型可任意調節不同角度,調節風量大小比雙行程氣動執行機構、電動執行機構操作簡便、可靠。
5、在電控部分,電動頭是由多組接線端子、二級管、繼電器等復雜的電子元件組成,質量不穩定,在金屬、煤炭等大氣污染惡劣的環境中使用容易使之失靈,而回轉器結合液壓特點采用進口全封閉集成電路板,體積小,重量輕,啟閉速度快。
6、液壓缸兩端設有機械調整機構,便于現場安裝要求。
7、設有電動、手動裝置,且無需切換任意操作,方便安裝和停電時工作。
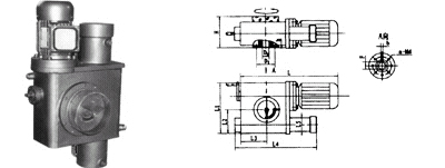
工作原理
DYHQ回轉器是一種機、電、液、儀一體化的新型電液動力裝置,它以液壓缸為主體,由電動機、油泵、油箱、濾油器、液壓集成閥、轉臂連桿組合的總成。
通過電機運轉帶動油泵,經液壓集成閥即可使液壓輸出力和位移運動,帶動轉臂連桿產生0-90度、0-120度間任意鎖定。
【產品型號編制規則】:

【主要技術參數】:

注:用戶如需表中未列出的特殊要求,可按用戶要求設計制造。


訂貨須知:
1、用戶在訂貨時,須注明產品種類、型式、力(或力矩)、速度、行程和使用位置等基本參數,缺一不可。
如有特殊需求亦請說明。
2、電氣控制部分均由用戶自行解決、樣本中所列電氣控制電路,僅供參考。
3、安裝、使用、維修等事項,請參見產品使用說明書(隨貨同行)。
4、產品發出6個月后,確因本公司制造問題,本廠實行三包,并供應配件。 |